Privates Bauen
Kaum ein Ereignis weckt solche Emotionen, wie das aktive Mitwirken bei der Umsetzung des großen Traums vom eigenen Haus. Spannung, Aufregung, Leidenschaft, Freude, Zufriedenheit, Glück und Stolz.
Ob Modernisierung, Umbau, Erweiterung oder Erneuerung, wir koordinieren kleine wie auch komplexe Projekte sorgfältig von Anfang an aus einer Hand.
Wirtschaftlichkeit, Nachhaltigkeit und niedrige Betriebskosten sind neben einer hochwertigen Architektur die Schwerpunkte unserer Planungen. Es gilt, die Balance zwischen Marktgängigkeit und höchster Individualität zu finden, um das Investment dauerhaft im Wert zu erhalten.
Wir garantieren Ihnen eine sichere Kalkulation und eine langfristig faire Kooperation und Zusammenarbeit.
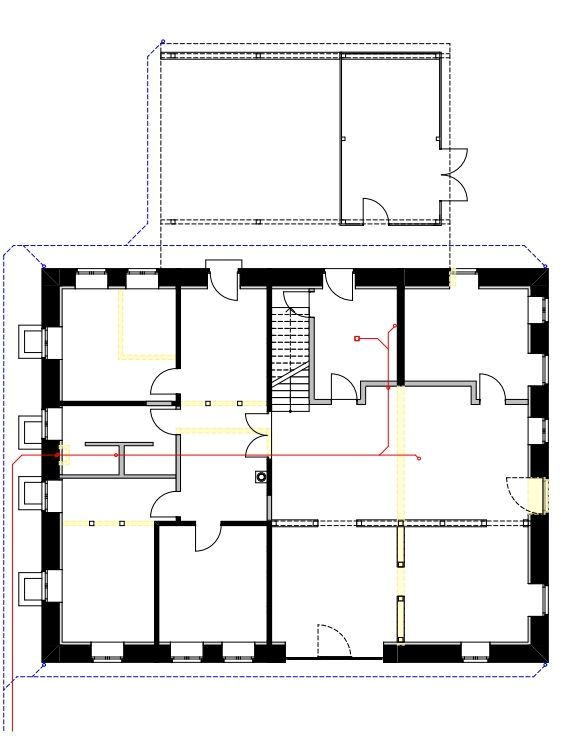
Umbau eines Wohnhauses, Umnutzung von Stallungen zu Wohnräumen und Neubau eines Doppelcarports mit Geräteraum
Dieses Projekt beeindruckt durch eine interessante Kombination aus traditioneller
Bauweise und modernen Renovierungen.
Da die Bruchsteinfassade erhalten bleiben soll, werden die Außenwände von Innen
mit Holzfaserplatten gedämmt und es wird ein Lehmputz aufgetragen, welcher die
Fähigkeit besitzt, Feuchtigkeit aus der Raumluft aufzunehmen und bei Bedarf wieder
abzugeben.
Dies reduziert die Gefahr von Schimmelbildung, sorgt für ein
ausgeglichenes Raumklima und erhöht den Wohnkomfort. Also ein echter Allrounder!
Der Austausch des vorhandenen Deelentors durch ein Fensterelement sorgt für mehr
Licht und eine einladende und gemütliche Atmosphäre im offenen Wohnbereich.
Neubau eines Ferienhauses mit Carport und Geräteraum
Das bestehende Erdgeschoss wird zurückgebaut und der Neubau wird in verdübelter
Massivholzbauweise auf der bestehenden Kellerdecke errichtet.
Besonders an dieser Massivholzbauweise ist das verwendete Mondholz. Diese Art
von Holz wird bei abnehmenden und bei Neumond geerntet und ist dadurch haltbarer
und widerstandsfähiger als konventionell geerntetes Holz, welches in der
herkömmlich verbreiteten Holzständerbauweise verbaut wird.
Auf giftige Holzschutzmittel kann so verzichtet werden.
Der verglaste Giebel lässt viel Tageslicht in den offen gestalteten Wohnbereich mit
integrierter Galerie hinein und bietet einen attraktiven Ausblick in die Natur.
Um die Dachkonstruktionen vor Wind- und Witterungseinflüssen zu schützen und
ökologische Ausgleichsflächen für Tiere und Pflanzen zu bieten wird eine der
Dachhälften des Ferienhauses und das Dach des Carports als Gründach ausgeführt.
Auf der anderen Dachfläche wird eine Photovoltaikanlage entstehen.



































